ACCUEIL
RÉALISATIONS
CONTACT
Extension maison individuelle
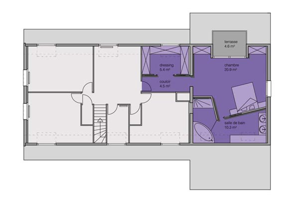
EXTENSION MAISON INDIVIDUELLE
Extension cuisine et espace parental avec terrasse / Brique peinte / Toiture ardoise / Chauffage sol
Lieu : Bondues
Surfaces : 86 m²
Durée des travaux : 5 mois
+
PARTICULIERS
PROFESSIONNELS
2 APPARTEMENTS PASSIFS
PARTICULIERS
Extension maison individuelle
PARTICULIERS
Maison individuelle
PARTICULIERS
CABINET MEDICAL
PROFESSIONNELS
MEZZANINE
PARTICULIERS
Maison individuelle
PARTICULIERS
Extension maison individuelle
PARTICULIERS
Dojo & Appartements
PROFESSIONNELS
Appartements & Cabinet Médical
PARTICULIERS
ESTAMINET
PROFESSIONNELS
Load More
Maison individuelle
PARTICULIERS
2 APPARTEMENTS PASSIFS
PARTICULIERS